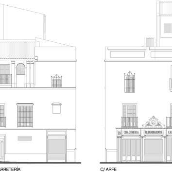
El proyecto se motiva por una orden municipal de ejecución de obras necesarias para el mantenimiento de las debidas condiciones de seguridad, salubridad y ornato en el marco de una rehabilitación de edificio. Se trata de un edificio entre medianeras, de 3 plantas más ático retranqueado. La planta baja de uso comercial, deja en fondo, junto a la medianera SO, la escalera de acceso a las viviendas. La planta primera es ocupada por una vivienda, y la segunda y el ático por otra con distribución compleja. El edificio ocupa la totalidad de una parcela prácticamente cuadrada, de 92,27 m², de esquina, en pleno centro histórico. La rehabilitación de edificio comprende la consolidación del perímetro del edificio que se conforma con un muro de carga de dimensiones generosas. Interiormente un muro paralelo a calle Arfe constituye la única crujía reconocible. Este muro se encuentra en planta baja sobre vigas de madera soportadas sobre los muros de fachada, pilares metálicos de piedra y de ladrillo encamisados con mortero grout. El resto de la edificación se confía a un pilar central, en planta baja de granito, y superiores de ladrillo, encamisados también, en planta baja y segunda. La crujía paralela a calle Arfe de tres plantas tiene sus forjados de madera de diferentes escuadrías perpendiculares a fachada. Sobre estos en planta baja tableros de ladrillo macizo y en plantas superiores de madera. La otra zona funciona mediante dos vigas, por planta, paralelas a calle Real de la Carretería, que soportan forjados de madera con vigas perpendiculares a esta fachada en planta baja y primera. En planta segunda el suelo del ático cambia la dirección del forjado. Estas vigas además están inclinadas, en clara alusión a ser de una antigua cubierta posteriormente cubierta por el ático.




